Ir al contenido

T. +34 91 541 01 68 | Calle Loeches 6

  • Twitter
  • Linkedin
  • Google Maps

Loeches 6B

Estudio de Arquitectura

  • Inicio
  • Estudio de arquitectura
  • Proyectos
  • Contactar
  • Noticias
Loeches 6B
Scroll
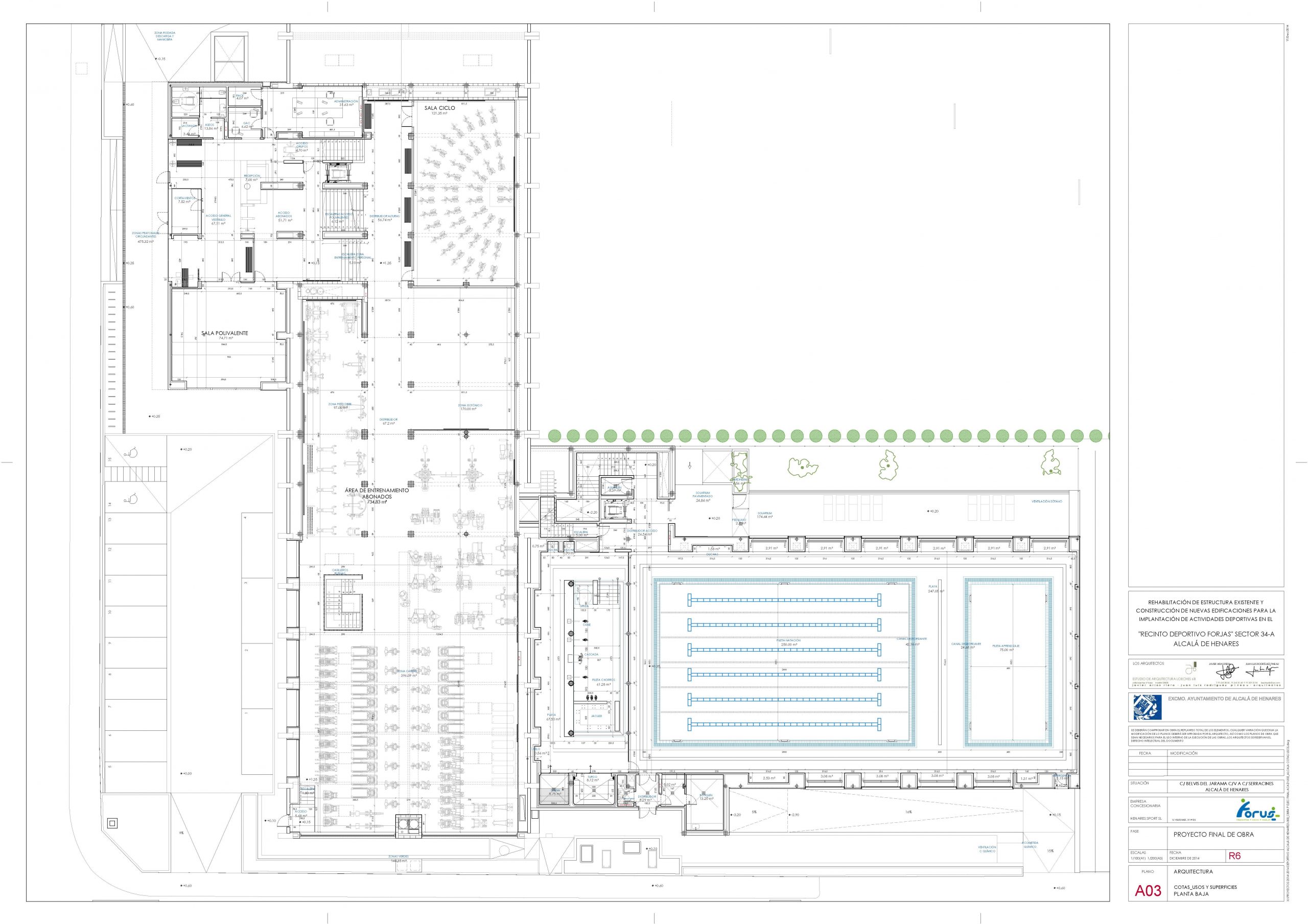
www.arquiloeches.es Proyectos Arquitectura Polideportivos Centro deportivo Forjas – Alcalá de Henares
Sala actividades

Centro deportivo Forjas – Alcalá de Henares

Publicado el 22 abril, 20158 febrero, 2019 por Arquitectos Loeches 6b
Planta
Planta
Sección
Seccion
Sala actividades
Plovalente
Sala fitness
Fitness
Sala Fitness
Fitness
Sala sobre fitness
Zona sobre fitness
Sala actividades
Polivalente
Spa
Spa
Piscina
Piscina

 

2010-2012

  • 4.300m²   actividad deportiva
  • 4.700 m² zonas exteriores
Publicado en PolideportivosEtiquetado Actividades dirigidas Alcalá de Henares Ciclo Indoor Fitness Nueva Construcción Piscinas Spa Vestuarios

Navegación de entradas

SiguienteSiguiente Valencia Rambleta
AnteriorAnterior C.D. Carlos Melero

Comparte esto:

  • Compartir en X (Se abre en una ventana nueva) X
  • Comparte en Facebook (Se abre en una ventana nueva) Facebook
  • Compartir en Telegram (Se abre en una ventana nueva) Telegram
  • Compartir en WhatsApp (Se abre en una ventana nueva) WhatsApp
© 2026 Loeches 6B Aviso Legal by Global Media
Ir arriba
  • Mapa del sitio

  • Loeches 6b
  • Estudio de arquitectura
  • Proyectos
  • Contactar
  • Noticias
  • Aviso Legal
Ir arriba
 

Cargando comentarios...